135 W Skycove Cir, Bryson City, NC 28713
Toggle Navigation
Images
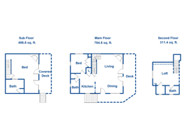
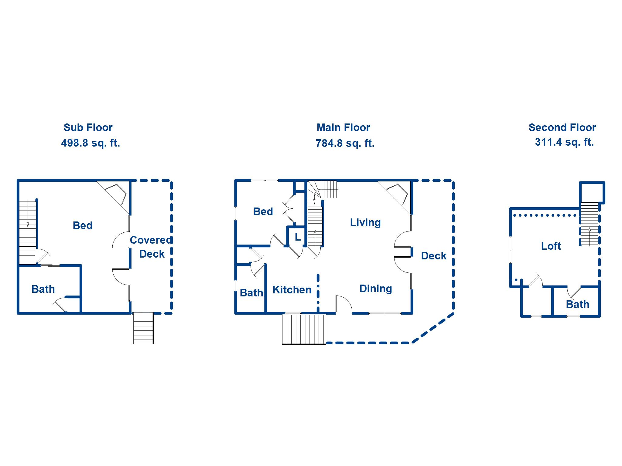
Floor Plans
Map
135 W Skycove Cir
Bryson City, NC 28713
Scroll to Content
Images
Slideshow
Photo Grid
Hide
Previous
Next
Show more
Floor Plans
Slideshow
Photo Grid
Hide
Previous
Next